openPR Recherche & Suche
Presseinformation

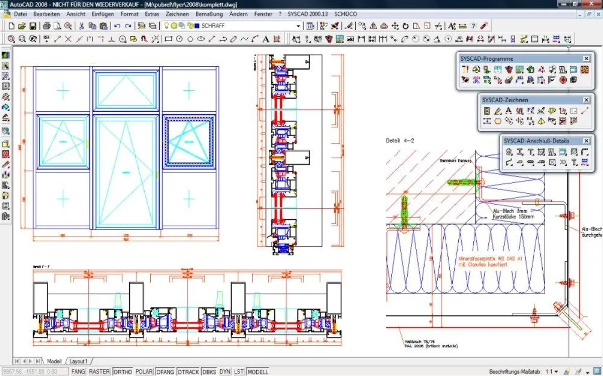
SYSCAD 2009SR1 - Machen Sie einen guten Schnitt

10.08.200916:43 UhrIndustrie, Bau & Immobilien
Bild: SYSCAD 2009SR1 - Machen Sie einen guten Schnitt
SYSCAD - CAD für den Metallbau - Ansicht, Schnitte und Details
SYSCAD - CAD für den Metallbau - Ansicht, Schnitte und Details

(openPR) SYSCAD ist die AutoCAD-Applikation, wenn es um CAD-gerechte und saubere Konstruktion von Schnittplänen und Anschlussdetails im Metallbau geht. Die Anforderungen an die Detailtreue in der Planung steigen ständig. Dies lässt sich nur mit effizienten Werkzeugen zeit- und kostensparend bewerkstelligen. SYSCAD ist seit dem Jahre 1989 das Werkzeug für den profilsystem-orientierten Metallbauer und Planer.

Mit der aktuellen Version 2009SR1 stehen unter anderem folgende neue Befehle und Möglichkeiten zur Verfügung:

- Uw-Wert Berechnung nach DIN EN ISO 10077 - 1
- 5 verschiedene Folienvarianten mit unterschiedlicher Darstellung und Beschriftung
- beliebige Blöcke sind als Artikel für die Stückliste definierbar. Diese Blöcke können als Profile in der Ansicht verwendet werden.
- Schweißsymbole

Und über 80 weitere Kundenwünsche wurden in der Version SYSCAD 2009SR1 umgesetzt.

SYSCAD ist die AutoCAD Applikation für den Metallbau.

Diese Pressemeldung wurde auf openPR veröffentlicht.

Verantwortlich für diese Pressemeldung:

News-ID: 337861
 1543

Kostenlose Online PR für alle

Jetzt Ihren Pressetext mit einem Klick auf openPR veröffentlichen

Jetzt gratis starten

Pressebericht „SYSCAD 2009SR1 - Machen Sie einen guten Schnitt“ bearbeiten oder mit dem "Super-PR-Sparpaket" stark hervorheben, zielgerichtet an Journalisten & Top50 Online-Portale verbreiten:

PM löschen PM ändern
Disclaimer: Für den obigen Pressetext inkl. etwaiger Bilder/ Videos ist ausschließlich der im Text angegebene Kontakt verantwortlich. Der Webseitenanbieter distanziert sich ausdrücklich von den Inhalten Dritter und macht sich diese nicht zu eigen. Wenn Sie die obigen Informationen redaktionell nutzen möchten, so wenden Sie sich bitte an den obigen Pressekontakt. Bei einer Veröffentlichung bitten wir um ein Belegexemplar oder Quellenennung der URL.

Pressemitteilungen KOSTENLOS veröffentlichen und verbreiten mit openPR

Stellen Sie Ihre Medienmitteilung jetzt hier ein!

Jetzt gratis starten

Weitere Mitteilungen von SYSCAD TEAM GmbH

Bild: SYSCAD auf der Frontale 2012 in NürnbergBild: SYSCAD auf der Frontale 2012 in Nürnberg
SYSCAD auf der Frontale 2012 in Nürnberg
SYSCAD ist die AutoCAD®-Applikation, wenn es um CAD-gerechte und saubere Konstruktion von Schnittplänen und Anschlussdetails im Metallbau geht. Die Anforderungen an die Detailtreue in der Planung steigen ständig. Dies lässt sich nur mit effizienten Werkzeugen zeit- und kostensparend bewerkstelligen. SYSCAD ist seit dem Jahre 1989 das Werkzeug für den profilsystem-orientierten Metallbauer und Planer und ermöglicht den komfortablen Zugriff auf über 420 Profilsysteme von 32 Lieferanten. Das SYSCAD TEAM zeigt auf der Messe fensterbau/frontale 20…
Bild: SYSCAD 2011 mit neuen FunktionenBild: SYSCAD 2011 mit neuen Funktionen
SYSCAD 2011 mit neuen Funktionen
SYSCAD ist die AutoCAD-Applikation, wenn es um CAD-gerechte und saubere Konstruktion von Schnittplänen und Anschlussdetails im Metallbau geht. Die Anforderungen an die Detailtreue in der Planung steigen ständig. Dies lässt sich nur mit effizienten Werkzeugen zeit- und kostensparend bewerkstelligen. SYSCAD ist seit dem Jahre 1989 das Werkzeug für den profilsystem-orientierten Metallbauer und Planer und ermöglicht den komfortablen Zugriff auf über 380 Profilsysteme von mehr als 30 Lieferanten. Durch die laufende Weiterentwicklung in enger Zusa…

Das könnte Sie auch interessieren:

Bild: SYSCAD auf der Messe BAU 2011Bild: SYSCAD auf der Messe BAU 2011
SYSCAD auf der Messe BAU 2011
SYSCAD ist die AutoCAD-Applikation, wenn es um CAD-gerechte und saubere Konstruktion von Schnittplänen und Anschlussdetails im Metallbau geht. Die Anforderungen an die Detailtreue in der Planung steigen ständig. Dies lässt sich nur mit effizienten Werkzeugen zeit- und kostensparend bewerkstelligen. SYSCAD ist seit dem Jahre 1989 das Werkzeug für den …
Bild: SYSCAD 2000.12 auf der BAU 2007 mit neuen FunktionenBild: SYSCAD 2000.12 auf der BAU 2007 mit neuen Funktionen
SYSCAD 2000.12 auf der BAU 2007 mit neuen Funktionen
… Flügel (innen / aussen) unterschiedlich oder in der Position jedem Profil einzeln. In der Ansicht kann dies visualisiert werden. - Die Profile können bei der Verschnittoptimierung jetzt in anderen Längen berechnet werden. Abweichend von der Lagerlänge des Lieferanten ist dadurch eine Kalkulation mit Fix-Längen möglich. - Mit der neuen Funktion RASTEREDIT …
Bild: SYSCAD – CAD für den Metallbau mit neuen FunktionenBild: SYSCAD – CAD für den Metallbau mit neuen Funktionen
SYSCAD – CAD für den Metallbau mit neuen Funktionen
SYSCAD ist die AutoCAD-Applikation, wenn es um CAD-gerechte und saubere Konstruktion von Schnittplänen und Anschlussdetails im Metallbau geht. Die Anforderungen an die Detailtreue in der Planung steigen ständig. Dies lässt sich nur mit effizienten Werkzeugen zeit- und kostensparend bewerkstelligen. SYSCAD ist seit dem Jahre 1989 das Werkzeug für den …
Bild: Das Kölner Startup FUNKTION SCHNITT setzt mit seinen Shirts auf perfekte Symbiose und optimale PerformanceBild: Das Kölner Startup FUNKTION SCHNITT setzt mit seinen Shirts auf perfekte Symbiose und optimale Performance
Das Kölner Startup FUNKTION SCHNITT setzt mit seinen Shirts auf perfekte Symbiose und optimale Performance
Köln, 21. September 2015 - Die Kreation einer durchdachten Auswahl an T-Shirts mit Fokus auf Vielfalt in Schnitt und Material, in bestmöglicher Qualität, modern und zeitlos im Design, passend zu verschiedenen Trageanlässen, unter fairen Bedingungen in Europa produziert - so lässt sich die Maxime von FUNKTION SCHNITT auf den Punkt bringen. Das Startup …
Bild: SYSCAD 2011 mit neuen FunktionenBild: SYSCAD 2011 mit neuen Funktionen
SYSCAD 2011 mit neuen Funktionen
SYSCAD ist die AutoCAD-Applikation, wenn es um CAD-gerechte und saubere Konstruktion von Schnittplänen und Anschlussdetails im Metallbau geht. Die Anforderungen an die Detailtreue in der Planung steigen ständig. Dies lässt sich nur mit effizienten Werkzeugen zeit- und kostensparend bewerkstelligen. SYSCAD ist seit dem Jahre 1989 das Werkzeug für den …
Bild: SYSCAD auf der Frontale 2012 in NürnbergBild: SYSCAD auf der Frontale 2012 in Nürnberg
SYSCAD auf der Frontale 2012 in Nürnberg
SYSCAD ist die AutoCAD®-Applikation, wenn es um CAD-gerechte und saubere Konstruktion von Schnittplänen und Anschlussdetails im Metallbau geht. Die Anforderungen an die Detailtreue in der Planung steigen ständig. Dies lässt sich nur mit effizienten Werkzeugen zeit- und kostensparend bewerkstelligen. SYSCAD ist seit dem Jahre 1989 das Werkzeug für den …
Bild: SYSCAD – CAD für den Metallbau mit neuen FunktionenBild: SYSCAD – CAD für den Metallbau mit neuen Funktionen
SYSCAD – CAD für den Metallbau mit neuen Funktionen
… verbreitete AutoCAD eingesetzt. SYSCAD wird seit mehr als 15 Jahren bei Kunden eingesetzt. Als Highlights sind folgende Punkte zu nennen: - Die erweiterte Schnittstelle für die bi-direktionale Datenübergabe von Fenster und Tür-Elementen zwischen SYSCAD und dem Kalkulationsprogramm MAP (www.mapdat.com). Dadurch wird das Zusammenspiel zwischen Kalkulation und …
Bild: SYSCAD – CAD für den Metallbau mit neuen FunktionenBild: SYSCAD – CAD für den Metallbau mit neuen Funktionen
SYSCAD – CAD für den Metallbau mit neuen Funktionen
SYSCAD ist die AutoCAD-Applikation, wenn es um CAD-gerechte und saubere Konstruktion von Schnittplänen und Anschlussdetails im Metallbau geht. Die Anforderungen an die Detailtreue in der Planung steigen ständig. Dies lässt sich nur mit effizienten Werkzeugen zeit- und kostensparend bewerkstelligen. SYSCAD ist seit dem Jahre 1989 das Werkzeug für den …
Bild: Schritt für Schritt zum richtigen Schnitt - Ratgeber zum Obstbaumschnitt jetzt erstmals auf DVDBild: Schritt für Schritt zum richtigen Schnitt - Ratgeber zum Obstbaumschnitt jetzt erstmals auf DVD
Schritt für Schritt zum richtigen Schnitt - Ratgeber zum Obstbaumschnitt jetzt erstmals auf DVD
… sind Kulturpflanzen. Um optimal wachsen und reiche Früchte tragen zu können müssen sie von Beginn an richtig behandelt werden: Die richtige Pflanzung und der richtige Schnitt sind für die Entwicklung von Obstgehölzen von Anfang an enorm wichtig. Der neue Film von GartenVideo.de „Obstgehölze schneiden und erziehen“ erklärt in eindrucksvollen Bildern …
Bild: Mit SYSCAD-SG machen auch Sie einen guten SchnittBild: Mit SYSCAD-SG machen auch Sie einen guten Schnitt
Mit SYSCAD-SG machen auch Sie einen guten Schnitt
SYSCAD-SG ist das neue Produkt der SYSCAD TEAM GmbH. SG steht dabei für Schnittgenerierung. SYSCAD-SG ist die Lösung für alle Anwender, die bereits mit einer AutoCAD-Applikation für den Metallbau arbeiten, dabei aber den Komfort im Umgang mit Profilsystemen für Fenster, Türen und Fassaden vermissen. SYSCAD-SG bietet umfangreiche Profilbibliotheken und …
Sie lesen gerade: SYSCAD 2009SR1 - Machen Sie einen guten Schnitt