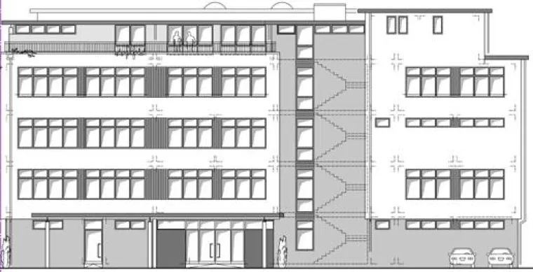
(openPR) Das IB Bildungszentrum Böblingen betreibt bereits seit mehr als 30 Jahren in Böblingen, jetzt in der Bahnhofstraße und in der Hanns-Klemm-Straße, zwei Dependancen. Am Mittwoch den 14.7.2010 wird nun um 14:00 Uhr der Grundstein für ein neues Schulgebäude verlegt. Auf dem Baufeld 13, direkt an der Liesel-Bach-Straße, entsteht ein Gebäude mit 2.500 Quadratmeter Nutzfläche. Aufgrund der sehr guten Erreichbarkeit mit öffentlichen Verkehrsmitteln und der Anbindung an den Bahnhof in Böblingen ist dies ein idealer Standort für eine Schule. In dem Neubau werden in erster Linie Angebote der Beruflichen Schulen, das kaufmännische und technische Berufskolleg sowie das sozialwissenschaftliche Gymnasium, unterkommen.
Die Fertigstellung des Gebäudes ist für August 2011 geplant, rechtzeitig zum Beginn des neuen Schuljahres, um ca. 400 Jugendlichen zwischen 15 und 18 Jahren den Erwerb eines weiterführenden Schulabschlusses zu ermöglichen.











