(openPR) MULTIFILM bietet umfassende Beratung und Projektunterstützung
Der Sonnen- und Blendschutzhersteller MULTIFILM bietet Architekten und Fassadenplanern ein umfangreiches Beratungsangebot und Unterstützung bei Großprojekten. Seit 2004 existiert zu diesem Zweck der Bereich „Projektmanagement“, dessen Kompetenzen personell mit ingenieurtechnischem Fachpersonal erweitert wurden. Die Planungsphase von Projekten wird zunehmend mit Architekten und Fassadenplanern gemeinsam gestaltet, um den erforderlichen Sonnenschutz optimal in den Neubau zu integrieren.
Glasfassaden sind bei modernen Bauten der Industrie und Wirtschaft nicht mehr wegzudenken. Sie demonstrieren Transparenz, Offenheit und Stabilität. Um das Eindringen von Sonnenenergie zu reduzieren, werden in der Praxis spezielle Sonnenschutzverglasungen eingesetzt. Dennoch gelangt meist noch zu viel Licht und Energie in die Gebäude, sodass ein wirkungsvolles Beschattungssystem unabdingbar wird. Eine innen montierte Beschattung bietet dabei u. a. den Vorteil, dass die optische Wirkung der Glasfassaden nicht durch äußere Sonnenschutzanbauten beeinträchtigt wird. Außerdem funktioniert sie auch in windgefährdeten Lagen und hohen Stockwerken. Gemeinsam mit Fassadenplanern werden Lösungen gesucht, um den Sonnenschutz fast unsichtbar in die Fassade zu integrieren.
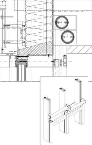
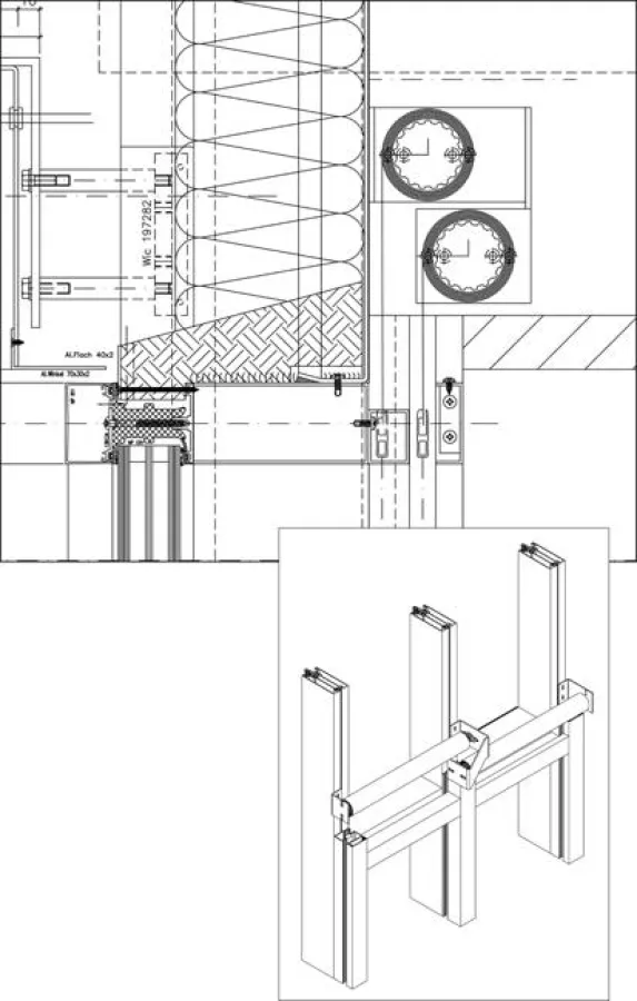
Die Zeichnung zeigt eine kundenspezifische Sonderlösung zur Beschattung mit Folien-Fassaden-Systemen von MULTIFILM. Seitlicher Lichteinfall wird vermieden, da die Systeme aufgrund der schmalen Pfosten in der Tiefe und in der Höhe versetzt montiert werden. Zusätzlich wurden die Pfosten mit integrierter Führungsnut geplant, in welcher die Folie mit Überdeckung geführt wird. Das Ergebnis ist eine fast unsichtbare, in die Pfosten-Riegel-Konstruktion der Fassade eingepasste Beschattung, die sich durch eine harmonische Innen- und Außenansicht auszeichnet.
MULTIFILM Sonnen- und Blendschutz GmbH
Hohensteiner Str. 30 u. 32, 09212 Limbach-Oberfrohna
Tel. (0 37 22) 77 05-0, Fax (0 37 22) 77 05-77
, www.multifilm.de












